Что такое пиролиз
Твердотопливный котел, работающий на угле или на дровах по старой, традиционной схеме – это уже пережиток прошлого. Несмотря на то, что твердое топливо продолжает оставаться относительно доступным, многих смущает невысокая эффективность обогрева жилого помещения, отапливаемого традиционными твердотопливными котлами. Ситуация сегодня в корне изменилась. На рынок отопительной техники пришли пиролизные котлы, экономичные, высокоэффективные и мощные агрегаты. Огромные технологические оборудования этого вида обязаны пиролизу, инновационному процессу сжигания твердого топлива.
Пиролиз представляет собой процесс равномерного распада органических соединений под воздействием высокой температуры. Искусственно ограничив доступ воздуха, можно превратить обычное горение топлива в медленно текущий термический распад органических соединений. В процессе тления органического топлива помимо тепловой энергии выделяется большое количество газообразного горючего вещества. В результате процесса получается древесный газ и древесный уголь. Другое название конечного продукта — кокс, органическое вещество, на 90% состоящее из углерода.
Полученный в результате пиролиза древесный газ является отличным топливом. Попадая во вторичную камеру сгорания, насыщенную кислородом, в процессе горения газообразное вещество выделяет огромное количество тепловой энергии.
Количество золы, оставшейся после сгорания древесного газа незначительно, что существенно облегчает чистку отопительного котла.
Этапы пиролиза
Что бы понять принцип работы пиролизного котла нужно иметь представление, что и зачем происходит на каждом этапе. Твердотопливный котел этого типа имеет две камеры сгорания. В первой камере сгорания осуществляется досушивание древесины. Температура котла в этот момент составляет 450 0С. На этом этапе начинается генерация продуктов горения в газообразное вещество — древесный газ. Смешиваясь с подаваемым с помощью вентилятора разогретым, вторичным воздухом, газообразное вещество горит уже при температуре 560 0С.
На данном этапе экзотермическая реакция набирает силу, создавая в итоге высокую интенсивность горения. Газ поступает во вторую камеру, где уже с помощью подаваемого кислорода горит значительно интенсивнее. Температура во второй камере сгорания составляет 1100 0С.
На каждом этапе из получаемых в результате горения продуктов выжимается максимально возможное количество полезной работы, соответственно КПД котла значительно увеличивается. Для оптимизации работы отопительного котла в рабочем режиме, конструкция пиролизного котла имеет шиберы (задвижки). В чем суть этих приспособлений?
После включения пиролизный котел работает в обычном, печном режиме. При полной загрузке котла топливом с помощью шибера можно выставить наиболее эффективный пиролизный режим горения. В отличие от традиционного горения экзотермической реакцией можно управлять. Такая особенность дала возможность сделать пиролизные котлы автоматизированными нагревательными приборами. Благодаря пиролизу удалось полностью использовать топливные возможности древесины, доведя в результате горения КПД котла до высоких значений. Автоматизация всего процесса минимизирует человеческий фактор, снижает расход топлива.
В плане выбора топлива, пиролизные котлы всеядны. Для отопления жилого дома с помощью твердотопливного котла пиролизного типа подойдут дрова и опилки, брикеты из древесины и торфа, пеллеты.
Что подразумевается под названием пиролиз
Пиролиз – генерирование горючего газа и его последующее сжигание, — происходит во всех твердотопливных котлах, в большей или в меньшей степени. Такой же процесс идет и в обычной печи, — при горении дров или угля, в каком-то месте не хватает кислорода, появляется угарный газ CO, затем он находит недостающий кислород и сгорает, выделяя тепло, превращаясь из яда в обычный углекислый газ – CO2.
В качестве экспериментов еще 1950-х годах была разработана схема котельного оборудования, где сначала топливо тлело при недостатке кислорода, затем полученное СО дожигалось во вторичной камере. Но идеи не были воплощены, как не дающие ни каких преимуществ с весомыми недостатками и дорогостоящие.
Теперь же в рекламках ядовитый угарный газ СО называют – «древесный газ».
Это интересно: Как сделать освещение в ванной комнате своими руками — разбираемся в вопросе
Установка оборудования
На следующем этапе необходимо провести установку оборудования на штатное место. Помните, что собранный своими руками пиролизный котел обладает просто адским весом – не вздумайте двигать его самостоятельно. Возьмите в помощники 3-4 человека и затащите остывший агрегат в помещение, выделенное под котельную. Далее проводим следующие работы:
- Выводим дымоход наружу и подключаем его к пиролизному котлу;
- Подключаем отопительную систему к котлу;
- Устанавливаем группу безопасности и проверяем герметичность системы;
- Проводим в помещение электрическую розетку;
- Устанавливаем котловую автоматику и подключаем к ней дутьевой вентилятор.
Теперь можно приступать к тестированию системы – делается это по аналогии с вышеуказанной инструкцией. Настройка пиролизного котла сводится к установке оптимальной температуры теплоносителя. Подробную информацию по этому вопросу можно получить в инструкции к используемому вами управляющему контроллеру.

Футеровка шамотным кирпичом позволяет соблюдать требуемый температурный режим и защищает металл.
Контроллер работает следующим образом – с помощью температурного датчика он контролирует температуру теплоносителя на выходе из пиролизного котла. Как только температура достигнет заданного уровня, электроника остановит работу вентилятора. Горение горючих газов замедлится и практически полностью остановится – дрова не погаснут, они будут просто медленно тлеть. Как только температура в контуре упадет, вентилятор включится, а горение в пиролизной камере возобновится.
Как работает пиролизный котел?
В основе работы котла лежит принцип пиролиза, суть которого заключается в термическом разложении твердого топлива при высокой температуре в условиях искусственно созданного дефицита кислорода. В результате топливо тлеет, разлагаясь на твердый остаток и пиролизный газ. Образующиеся газы также сгорают, что повышает теплоэффективность оборудования и делает расход топлива более рациональным.
Устройство котла
Дополнительным преимуществом рассматриваемых отопительных котлов является экологическая безопасность. В процессе пиролизного сжигания топлива выделяющиеся вредные компоненты смешиваются с углекислым газом и утилизируются. В результате в атмосферу выводится дым, не содержащий канцерогенов и прочих вредных веществ. Эта особенность позволяет топить котлы даже резиной, обрезками древесно-стружечных плит и прочими подобными материалами.
Как движется воздух в котле
Работа пиролизных котлов состоит из 4 основных этапов.
- На первом этапе топливо дополнительно сушится и разлагается на твердый остаток и газы.
- На втором этапе пиролизные газы сжигаются.
- На третьем этапе продувается пламя и тепло возвращается к топливу, что способствует выделению дополнительного количества тепла.
- На четвертом этапе оставшиеся продукты сгорания выводятся через дымоход.

Пиролизный котел
Разобравшись в особенностях работы котла, приступаем к его изготовлению. Начнем с подготовки необходимых материалов и инструментов.

Котел пиролизный Viessman

Описание конструкции
Набор для работы
- Листовой металл толщиной от 0,8 мм.
- Огнестойкие кирпичи.
- Температурные датчики.
- Решетка колосника.
- Трубы диаметром 32 мм, 57 мм и 160 мм.
- Профилированные трубы в количестве 2 штук.
- Дверца зольника.
- Дверка для топливной камеры.
- Вентилятор.
- Гибкая пережженная проволока.
- Болгарка.
- Шлифовальные круги.
- Сварочный аппарат.
Подробный разбор схемы
Согласно представленной выше схеме, наш пиролизный котел, собираемый своими руками, будет состоять из следующих частей:
Не считая вентилятора, подобный контроллер — единственная электронная вещь во всем агрегате. Экономить на ней категорически не рекомендуется.
- Электронный контроллер, управляющий вентилятором для котла;
- Дверца для загрузки дров (можно сделать самому или приобрести готовую);
- Дверца зольника;
- Дутьевой вентилятор (приобретается в магазине, создает тягу и вытягивает продукты пиролиза в камеру дожигания).
Из элементов управления – непосредственно контроллер и ручки для открывания/закрывания дверок.
Как работает пиролизный котел?
В основе работы котла лежит принцип пиролиза, суть которого заключается в термическом разложении твердого топлива при высокой температуре в условиях искусственно созданного дефицита кислорода. В результате топливо тлеет, разлагаясь на твердый остаток и пиролизный газ. Образующиеся газы также сгорают, что повышает теплоэффективность оборудования и делает расход топлива более рациональным.
Устройство котла
Дополнительным преимуществом рассматриваемых отопительных котлов является экологическая безопасность. В процессе пиролизного сжигания топлива выделяющиеся вредные компоненты смешиваются с углекислым газом и утилизируются. В результате в атмосферу выводится дым, не содержащий канцерогенов и прочих вредных веществ. Эта особенность позволяет топить котлы даже резиной, обрезками древесно-стружечных плит и прочими подобными материалами.
Как движется воздух в котле
Работа пиролизных котлов состоит из 4 основных этапов.
- На первом этапе топливо дополнительно сушится и разлагается на твердый остаток и газы.
- На втором этапе пиролизные газы сжигаются.
- На третьем этапе продувается пламя и тепло возвращается к топливу, что способствует выделению дополнительного количества тепла.
- На четвертом этапе оставшиеся продукты сгорания выводятся через дымоход.
Пиролизный котел
Разобравшись в особенностях работы котла, приступаем к его изготовлению. Начнем с подготовки необходимых материалов и инструментов.
Котел пиролизный ViessmanОписание конструкции
Набор для работы
- Листовой металл толщиной от 0,8 мм.
- Огнестойкие кирпичи.
- Температурные датчики.
- Решетка колосника.
- Трубы диаметром 32 мм, 57 мм и 160 мм.
- Профилированные трубы в количестве 2 штук.
- Дверца зольника.
- Дверка для топливной камеры.
- Вентилятор.
- Гибкая пережженная проволока.
- Болгарка.
- Шлифовальные круги.
- Сварочный аппарат.
Схема сборки устройства и монтаж по правилам ТПБ

Схема сборки и размеры элементов
Прежде чем начать сборку установки требуется составить план — смеху будущего устройства и сделать чертежи и необходимые расчеты. Если вы совсем новичок и никогда не делали ничего подобного, рекомендуется не заниматься разработкой схемы устройства самостоятельно.

Обозначение элементов
Лучшим вариантом будет взять из открытых источников уже готовую и проверенную схему котла и внести в нее изменения, в соответствии со своими потребностями.

Таблица размеров и мощностей
За основу можно взять схему пиролизного котла Беляева, которую легко отыскать в сети.
Данная схема позволит собрать устройство мощностью 40кВт. Вносить принципиальные изменения в конструкцию котла не стоит, если только вы не инженер, специализирующийся на разработке тепловых установок
Важно при любом внесении изменений оставить неизменным внутренний размер камеры горения
Выбор пиролизного котла для дачного отопления имеет ряд преимуществ, однако главным из них является возможность использования в качестве теплоносителя воздух, вместо воды. Такой способ отопления предохранит трубы от замерзания зимой и не потребует слива системы. При отоплении воздухом создается такая же замкнутая система труб, как и при водяном отоплении.
Установка котла после сборки требует соблюдения требований пожарной безопасности. Нарушение данных требований влечет за собой большой риск получения не только материального ущерба, но и ставит под угрозу жизнь и здоровье людей, проживающих в доме.
- Под отопительное оборудование должна быть отведена отдельная комната, являющаяся не жилой.
- Под отопительной установкой обязательно должно быть прочное каменное основание – кирпич или бетонная стяжка.
- Камеры топок должны быть дополнительно защищены металлическим листом толщиной не менее 2-х мм.
- Котел должен быть установлен на расстоянии от стен (минимально допустимое – 20см)
- Помещение, отведенное под котельную, должно быть оборудовано дополнительной вентиляцией (площадь отверстия вентиляции не менее 100 см)
Мало места для котла? Поставьте печь!

Пиролизная печь
Для владельцев маленьких дачных домиков, где нецелесообразно устанавливать полноценный котел из-за малой площади стоит обратить свое внимание на пиролизную печь. Принцип работы печи тот же, что у котла и основан на горении древесины
Принцип работы печи тот же, что у котла и основан на горении древесины.
Для изготовления такой печи вам потребуются следующие материалы:
- Керамический кирпич около 400 шт.
- Шамотный кирпич около 100 шт.
- Лист стали толщиной 4 мм (6 на 1,5 метра)
- Вентилятор для нагнетания воздуха
- 3 чугунных колосника.
- Регулятор температуры (рычаг).
- Металлические дверцы для топки и поддувала.
Из перечисленных материалов вы сможете собрать печь мощностью 15-25 кВт. Такая печь с легкостью создаст тепло в маленьком дачном домике площадью до 60 квадратных метров.
Из этих материалов у вас получится печь, мощностью до 25 кВт. При необходимости отапливать меньший объем достаточно уменьшить размеры печи под вашу площадь.
Большинство людей отказались от дровяного отопления в пользу газификации по причине автономности последнего. Однако в загородном дачном домике, где не требуется проживать постоянно потрескивание поленьев в огне, и особое тепло создаст уют и гармоничную обстановку. Дача это место где люди отдыхают от городской суеты. Отопление на дровах будет особенно актуальным.
Технология сборки
- Последовательность операций может быть различной, но опыт мастеров показывает, что сборку котла своими руками лучше проводить так:
- По приведенному базовому чертежу выполняют рабочий, с размерами, уточненными по таблице и расчету.
- Из листов металла и труб болгаркой вырезают заготовки для сборки агрегата. Отверстия для труб и штуцеров выполняют с помощью дрели и электролобзика или плазмореза — второй вариант предпочтительнее, так как позволяет сделать идеально ровный срез.
- Сваривают топочную камеру из металла 4-5 мм толщиной. Вваривают перегородку, образующую дымооборот в задней части топки. Между загрузочной камерой и зоной дожига из уголка или стальной полосы делают опору для колосника. Колосник лучше устанавливать чугунный — он прослужит дольше, а при деформации или прогорании можно легко его снять и заменить.
- К камере в верхней его части приваривают дымовой патрубок и трубу с заслонкой для подачи воздуха. На выходе предусматривают посадочные места для дымососа.
- Выполняют проемы для дверок топочной и зольной камеры из обрезков металла.
- Наваривают перемычки, которые будут соединять внутреннюю и внешнюю стенки теплообменника и компенсировать перепады давления. Их можно сделать из стальной полосы. Перемычки должны располагаться вертикально, чтобы не мешать естественной циркуляции теплоносителя.
- Постепенно приваривают внешние стенки теплобменника, соединяя их с перемычками. В отверстия на задней стенке котла приваривают штуцера для подачи воды в систему.
- Делают из листового металла дверцы. Их выполняют двойными со слоем теплоизоляции — асбестовой тканью. Дверки крепят к котлу на петли или продумывают другой тип крепления.
- Топку в зоне дожига футеруют шамотным кирпичом в четверть кирпича на жаропрочный раствор.
- К котлу приваривают или крепят на болты регулируемые ножки, позволяющие выставить его строго горизонтально.
- Корпус шлифуют, удаляют окалину, после чего своими руками покрывают его жаропрочной краской из баллона.
- Устанавливают дымосос между дымовым патрубком и дымоходом, подключают его к сети.
- На верхней части котла устанавливают контроллер, а датчик размещают в теплообменнике рядом с выходным штуцером.
На этом сборка котла закончена, и можно подключать его к системе отопления и приступать к наладке.
Подключение котла к отопительному контуру

Из-за склонности к низкотемпературной коррозии теплообменника рекомендуется обязательно контролировать температуру воды на входном штуцере. Она не должна опускаться ниже 60 градусов Цельсия. Для того, чтобы поддержать ее в этих пределах, между прямой и обратной трубой делают перемычку, с помощью которой обратку разбавляют горячей водой до нужной температуры.
Наладка и включение
Перед включением котла в работу необходимо заполнить систему теплоносителем. Наладка заключается в выборе режима подачи воздуха в камеру дожига, тем самым регулируется интенсивность горения газов и температура в топке.
Косвенно можно определить оптимальность режима работы по дыму, выходящему из трубы: если он не имеет резкого запаха и серого оттенка, значит, топливо сгорает полностью, и режим выбран правильно.
Первые несколько дней самодельный котел работает в режиме тестирования. В это время лучше не оставлять его без присмотра и использовать только качественное топливо, а камеру загружать на 2/3 загрузки. После тестирования котел можно запускать на полную мощность и наслаждаться теплом в доме.
Принцип работы пиролизных котлов и их особенности
Создавая пиролизные котлы своими руками, люди стремятся сэкономить денежные средства в своем кошельке. Если газовое оборудование стоит довольно дешево, то твердотопливные агрегаты просто поражают своей ценой. Более-менее приличная модель мощностью 10 кВт обойдется в 50-60 тысяч рублей – дешевле провести газ, если рядом проходила бы газовая магистрально. Но если ее нет, то выходов два – приобретать заводское оборудование или делать его самостоятельно.
Изготовить пиролизный котел длительного горения своими руками можно, но сложно. Давайте для начала разберемся, для чего вообще нужен пиролиз. В обычных котлах и печах дрова сгорают традиционным способом – при высокой температуре, с выбросом продуктов сгорания в атмосферу. Температура в камере сгорания составляет порядка +800-1100 градусов, а в дымоходе – до +150-200 градусов. Таким образом, солидная часть тепла просто улетает наружу.
Прямое сгорание дров применяется во многих отопительных агрегатах:
Твердотопливные пиролизные котлы могут использовать несколько видов топлива, в том числе отходы деревообрабатывающего производства и сельскохозяйственной переработки.
- Твердотопливные котлы;
- Печи-камины;
- Камины с водяными контурами.
Главным преимуществом данной методики является то, что она отличается простотой – достаточно создать камеру сгорания и организовать отвод продуктов сгорания за пределы оборудования. Единственным регулятором здесь становится дверка поддувала – регулируя просвет, мы можем отрегулировать интенсивность горения, тем самым воздействуя на температуру.
В пиролизном котле, собранном своими руками или купленном в магазине, процесс сгорания топлива идет несколько по-другому. Дрова здесь сгорают при низкой температуре. Можно сказать, что это даже не горение, а медленное тление. Древесина при этом превращается в подобие кокса, одновременно выделяя горючие пиролизные газы. Эти газы отправляются в камеру дожигания, где сгорают с выделением большого количества тепла.
Если вам кажется, что данная реакция не даст особого эффекта, то вы глубоко заблуждаетесь – если заглянуть в камеру дожигания, то здесь будет видно ревущее пламя ярко-желтого, почти белого, цвета. Температура сгорания – чуть выше +1000 градусов, а тепла в этом процессе выделяется больше, чем при стандартном горении древесины.
Для того собранный своими руками пиролизный котел смог показать максимальную эффективность, необходимы дрова с низким содержанием влаги. Влажная древесина не даст оборудованию выйти на полную мощность.
Реакция пиролиза знакома нам еще со школьного курса физики. В учебнике (а может и в лабораторном кабинете) многие из нас видели интересную реакцию – древесина помещалась в стеклянную запечатанную колбу с трубкой, после чего колба нагревалась над горелкой. Через несколько минут древесина начинала темнеть, а из трубки начинали выходить продукты пиролиза – это горючие газы, которые можно было поджечь и понаблюдать за желто-оранжевым пламенем.
Аналогичным образом работает и пиролизный котел, собранный своими руками:
На одной загрузке топлива пиролизные котлы работают около 4-6 часов. Так что большим и стабильно пополняемым запасом дров стоит озаботиться заранее.
- В топке разжигаются дрова до появления устойчивого пламени;
- После этого доступ кислорода перекрывается, пламя гаснет почти полностью;
- Запускается дутьевой вентилятор – в камере дожигания появляется высокотемпературное пламя.
Устройство пиролизного котла довольно простое. Основными элементами здесь являются: камера сгорания, в которой складированы дрова, и камера дожигания, в которой сгорают продукты пиролиза. Передача тепла в отопительную систему осуществляется через теплообменник
В схеме пиролизного котла ему уделяется особое внимание
Все дело в том, что теплообменники в пиролизных котлах, собранных своими руками, устроены не так, как в газовом оборудовании. Продукты сгорания с воздухом проходят здесь через множество металлических труб, омываемых водой. Для увеличения эффективности котловая вода омывает не только сам теплообменник, но и все другие узлы – здесь создается своего рода водяная рубашка, которая отбирает излишки тепла от раскаленных элементов котельного агрегата.
Топливо для пиролизного котла
Твердотопливные пиролизные котлы практически всеядны. В качестве топлива можно использовать разнообразные виды твердого топлива: начиная от обычных дров и заканчивая торфом.
Исходя из этого, топить котел можно любым видом твердого топлива, но все же каждый вид отличается присущими только ему качествами и свойствами, поэтому будет отличаться и работа котла.
Следовательно, выбор топлива является очень важным процессом.
Использование обычных дров.
Дрова для твердотопливных пиролизных котлов должны быть обязательно сухими (допускается использование дров с влажностью не более 20%). От сухости зависит теплоотдача котла.
Загружая поленья в топку, размещать их нужно плотно друг к другу, а вверху следует оставлять свободное пространство не менее 20 см. Стоит отметить, что можно использовать и неколотые дрова.
При первой загрузке необходимо использовать приблизительно половину порции дров, остальные помещаются по мере прогорания в котле. Сгорают дрова неравномерно – их необходимо все время аккуратно раскладывать по поверхности топки, при этом не допускать охлаждения твердотопливного пиролизного котла.
Минусом использования дров есть то, что топку этим видом топлива невозможно автоматизировать. Плюсом же есть тот факт, что это очень экологичный способ отопления помещения.
Использование торфа.
При использовании торфа в качестве топлива для твердотопливного пиролизного котла необходимо придерживаться определенных правил. Во-первых, топливник должен всегда быть очищен от золы, а во-вторых, поддувальная дверца должна быть закрытой.
Торф следует выкладывать на колосниковую решетку. На этот слой для лучшей растопки можно положить немного дров и прикрыть все это еще одним слоем торфа. Затем открыть задвижку дымоотвода и приступать к растопке.
Во время работы твердотопливного отопительного оборудования необходимо следить за тем, чтобы торф всегда лежал равномерным слоем. Такое расположение торфа обеспечит максимальную теплоотдачу.
Использование угля.
Чтобы получить наилучший уровень тепла с помощью угля в качестве топливо, необходимо использовать специальный топливник – шахту с колосниковой решеткой и вертикальными стенками.
Топливник должен быть достаточно высоким, расстояние между сводом и решеткой должно быть минимум 50 см. Топочные и поддувальные дверцы должны быть сделаны из чугуна, оптимальное расстояние между дверцами – 21 см.
Кроме того, дверцы рекомендуется строго герметизировать. Следует помнить, что при использовании угля новую порцию топлива стоит подбрасывать только тогда, когда первая хорошо разгорелась. При этом нужно постоянно поддерживать равномерный слой и не допускать прогорания угля до решетки.
Использование топливных брикетов.
Сегодня топливные брикеты – это самое оптимальное средство для топки твердотопливных пиролизных котлов. Можно использовать как угольные, так и торфяные брикеты.
Благодаря использованию брикетов, Вы получите высокую теплотворность, ровный процесс горения (не нужно вмешиваться в сам процесс горения и поправлять слои), высокую плотность горящего слоя, небольшое количество пламени и минимальное количество дыма.
Также преимуществом есть сгорание брикета без остатка и удобство фасовки брикетов. Топку твердотопливного пиролизного котла ведут до полного сгорания топливных брикетов. Если же остаются несгоревшие брикеты, их используют вторично.
Размеры стандартной топки котла регламентируют размеры используемого топлива (габариты дров или брикетов). Как правило, для топлива в газогенераторных котлах используются поленья длиной » 400 мм, и диаметром до 200 мм. Размер топливных брикетов – 300х30.
Вместе с дровами или брикетами можно в качестве топлива использовать и опилки. Но брать их следует не больше трети от основной части топлива по объему.
Инструкция по эксплуатации предусматривает, что влажность топлива не должна быть выше 45%. Чем меньше влажность древесины, тем больше мощность котла и тем дольше он сможет проработать без ремонта.
Например, килограмм древесины 20% влажности при сгорании дает тепла эквивалентного 4 кВт-ч, а дрова 50% влажности – всего 2 кВт-ч. Кроме того, что при увеличении содержания влаги в топливе, снижается удельная теплота сгорания, значительно увеличивается расход топлива.
Пиролизная печь как альтернатива котлу
Многие умельцы утверждают, что изготовление такого котла мощностью менее 15 кВт не имеет смысла
А как же быть владельцам маленьких дачных домиков, площадь которых не предусматривает более мощного отопительного оборудования? Возможно, стоит обратить внимание на пиролизную печь. Она во многом напоминает пиролизный котел — принцип работы такой печи основан на тех же свойствах горения древесины
Внутренности пиролизной печи (клик для увеличения)
Для изготовления такой печи вам понадобится:
- Керамический кирпич – 400 шт.
- Шамотный кирпич – 100 шт.
- Стальной лист толщиной 4 мм и размером 6х1,5 метра.
- Вентилятор наддува.
- Чугунные колосники – 3 шт.
- Рычажный терморегулятор.
- Дверцы для топочной камеры и поддувала.
Из этих материалов у вас получится печь, мощностью до 25 кВт. Ее будет вполне достаточно для отопления дачного домика, площадью около 60 м2. Если даже этой мощности для вас много, достаточно уменьшить габариты печи.
Чертежи и описание
Принцип его действия таков:
- в топливник через дверку, расположенную в верхней части корпуса, закладывают разовую порцию топлива и разжигают их сверху;
- вентилятор-дымосос, установленный в верхней части корпуса, направляет выделяющийся при горении дым в камеру дожигания;
- там происходит окончательное догорание газов и содержащихся в них горючих включений;
- дым отводится через дымовой патрубок, расположенный в задней части котла, в дымоход;
- зола, образующаяся при топке, через колосниковую решетку попадает в зольник, который находится ниже топочной камеры;
- топку окружает водяная рубашка, играющая роль теплообменника и термоизоляции стенок котла;
- вода в теплообменник поступает через нижний штуцер, расположенный в задней части котла, а отводится в систему — через верхний;
- на верхней плоскости котла расположен контроллер, позволяющий регулировать режим, а внутри теплообменника — температурный датчик.
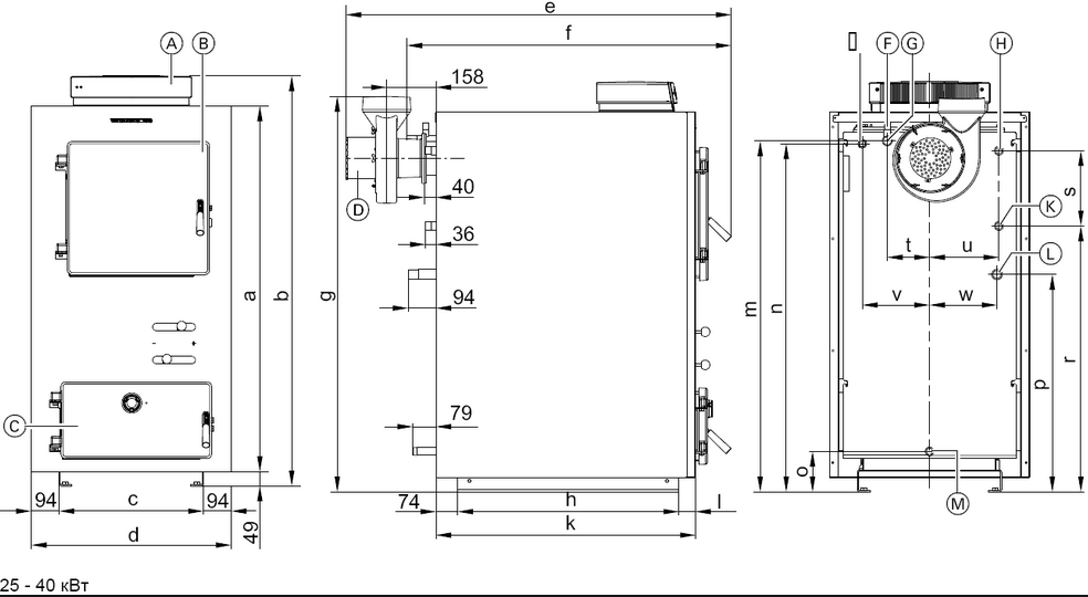
На чертеже представлены размеры котла и обозначения его конструктивных частей. Часть размеров обозначена буквенным кодом — их уточняют по таблице и выбирают по желаемой мощности котла. Эти размеры определены тепловым расчетом, от них зависит правильная и бесперебойная его работа.
Материалы и инструмент, необходимые для сборки
- Корпус котла делают своими руками из листовой стали и металлических труб с помощью сварки. Поэтому перед его изготовлением необходимо подготовить:
- сварочный инвертор, электроды;
- болгарка с отрезными и шлифовальными кругами;
- дрель с набором сверл по металлу;
- электролобзик.
Материалы и их примерное количество:
- 3 листа стали стандартного размера 1250х2500 мм, толщина 4-5 мм, лучше холодный прокат — его меньше ведет при скачках температуры;
- 2 листа оцинкованной стали 1250х2500 мм, толщина 1,5-2 мм;
- металлическая труба Ø32 мм, толщина стенок 3,2 мм;
- металлические трубы Ø57 мм, толщина стенок 3,5 мм;
- металлическая труба Ø159 мм, толщина стенок 4,5 м, общая длина 0,5 м;
- профильная труба двух сортотипов: 60х30х2 и 80х40х2;
- фурнитуру для дверок — ручки, задвижки;
- метизы;
- шамотный кирпич для футеровки топки;
- асбестовый шнур для термоизоляции дверцы.
Точное количество материала необходимо уточнить по рабочим чертежам. Кроме этого, необходимо подготовить дымосос — вентилятор необходимой мощности, термодатчик, контроллер и источник бесперебойного питания на ~220 В. Мощность вентилятора определяется с помощью расчета.
Для уменьшения веса котла для внешних стенок теплообменника можно взять сталь толщиной 2 мм. Они нагреваются меньше, чем до 100 градусов, поэтому не подвержены деформации.
Принцип действия
Сейчас мы попытаемся понять, как устроен пиролизный котел длительного горения и как он работает. Принцип действия очень прост и одновременно сложен. О пиролизе рассказывается еще в школьном курсе физики – подвергаясь нагреванию в замкнутом пространстве, древесина выделяет горючие газы, которые можно поджечь и получить тепло. Фактически прямого сгорания древесины в таком опыте нет.
В пиролизных котлах длительного горения дрова все-таки горят, но с ограничением подачи воздуха. Можно сказать, что это медленное тление. Разгоревшись, дерево начинает выделять горючие газы, которые сгорают в камере дожигания. Итого мы получаем два источника тепла – это горящие дрова и сгорающий древесный газ. Эффект от такого поэтапного сгорания ощущается в виде экономии топлива до 40%. Древесный газ в пиролизных котлах длительного сгорания образуется в результате медленного тления топлива. Одновременно с этим оборудование нагревает воздух, который вместе с древесным газом подается в камеру дожигания. Там смесь воспламеняется и сгорает с образованием большого количества тепла. При этом количество вредных выбросов, по сравнению с традиционными котлами, предельно мало.
Таким образом, пиролизный котел – это прямая экономия топлива, так как из одной и той же порции дров можно выделить большее количество тепла. Вместо 10 кубометров дров на один зимний период может уйти всего 6-7 кубометров. При этом пользователям не нужно будет каждые 2-3 часа подкладывать в ненасытную топку все новые порции дров.
Пиролизные котлы длительного горения выпускаются в нескольких модификациях:

Несмотря на низкую скорость горения топлива, выделяемые порилизные газы способны нагнетать пламя до подобного яркого бело-желтого цвета.
- Энергонезависимые – они работают на естественной тяге и управляются механическим способом;
- Энергозависимые – здесь пиролиз протекает с использованием принудительной тяги. За счет этого повышается эффективность горения;
- С разным расположением камеры дожигания – она может располагаться над камерой сгорания или под ней. Также в продаже присутствуют модификации с последовательным расположением камер.
Модификаций много, но в целом устройство и принцип работы почти ничем не отличаются.
Энергозависимые пиролизные котлы длительного горения хороши тем, что в них часто присутствует автоматика, которая может управлять мощностью оборудования и интенсивностью горения, ориентируясь на температуру теплоносителя или на температуру в комнатах.
Длительное горение в пиролизных котлах обеспечивается сразу двумя факторами. Первый фактор – это низкая скорость горения/тления древесины. Второй фактор – большой объем камеры сгорания. Например, в продаже присутствуют пиролизные котлы с объемом топки 50 литров и даже больше. Неудивительно, что частота подходов для загрузки горючего снижается до 1-2 раз в сутки.
Схема, особенности работы
Вторично в 2000-х годах, когда у среднего производителя появились достаточные производственные возможности и материалы, началось производство на бытовом уровне. У потребителя лживая вызывала интерес, — появились продажи и прибыль.
Схема пиролизного котла обычная – в большой камере закладка дров сначала разгорается, затем автоматика перекрывает воздух и при его недостаче дрова тлеют длительное время. Выделяющийся угарный газ и большое количество зольных частиц – чистого углерода С смешивается с подогретым воздухом во вторичной камере, где и догорают.
В этой горелке всегда красноватое пламя – прямой признак реакции с участием углерода.

В заключение
Газогенераторные котлы являются довольно сложными конструкциями. Для того, чтобы изготовить их своими руками необходимо иметь некоторые навыки изготовления подобных агрегатов и, кроме того, подробные чертежи той или иной конструкции. Представленные здесь схемы пиролизных котлов отражают лишь общие принципы их устройства и могут быть использованы, как основа для составления таких чертежей своими руками, на основании расчетов их параметров, с учетом необходимой мощности, длительности горения и других критериев. Но сделать это не так просто. Лучше всего, найти и использовать уже готовые чертежи самодельных пиролизных котлов, работающих по той или иной, заинтересовавшей вас, схеме. Некоторые из них мы постараемся рассмотреть в следующих статьях этой рубрики.





































