Содержание
Гараж — излюбленное место многих автолюбителей. Владельцы автомобилей стараются облагородить помещение, сделать его более практичным и уютным. В зимнее время года в неотапливаемом гараже проблематично проводить много времени, поэтому многие мастерят самодельные буржуйки для обогрева. Конечно, можно купить готовый отопительный прибор, но сделать печь самому будет дешевле и экономичнее.

Буржуйка подходит для обогрева гаража в холодное время года. Она намного экономичнее электрических отопительных приборов, а ее установка и монтаж не требуют серьезных строительных навыков.
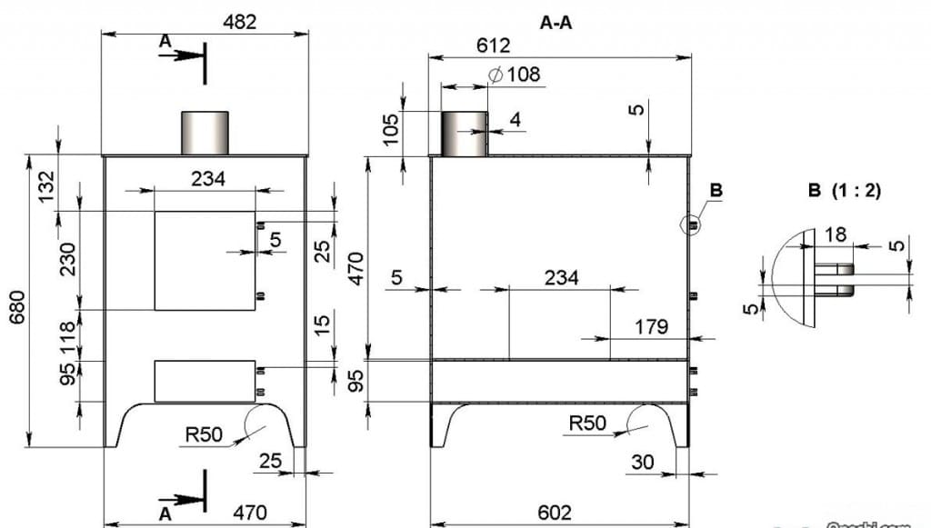
Прямоугольная буржуйка из профильной трубы
Этот вариант буржуйки, изготавливаемой своими руками по чертежу самый эффективный. Буржуйка этого варианта, как предыдущая модель прямоугольной формы, но стенки у неё состоят из сварной профильной трубы прямоугольного сечения. Воздух будет проходить между трубы и больше нагреваться, за счет чего повысим эффективность печи.
Приступаем к работам:
- Профильную трубу разрезаем на части длиной сорок сантиметров. Необходимо столько кусков, чтобы сварить их и получить выбранную длину нижней и верхней части. Кусочки трубы кладём друг к другу. С одной стороны, проходим сплошным швом, а с другой делаем только прихватки в трёх местах.
- Аналогичными действиями делаем вторую стенку и заднюю стенку. По завершении работ по изготовлению стенок из профильной трубы, собираем форму буржуйки. При этом сплошные швы должны размещаться в середине устройства.
- На верхней части с помощью трубы для дымохода отмечаем его расположение. Вырезаем окружность. К нижней и верхней части передней стороны привариваем уголок. Немного выше нижнего уголка привариваем кусочек профильной трубы такого же сечения, как и стены.
- Замеряем переднюю часть, по полученным размерам вырезаем ее из листового металла. В том месте, где приварена труба, разрезаем заготовку на две части. Прикладываем верхнюю часть на свое место, фиксируем две петли.
- Нижний кусочек небольшой толщины, оставляем на своем месте. Примерно посередине днища фиксируем кусочек уголка, как это показано на изображении. К этой же части привариваем небольшую ручку. Ручку фиксируем и на дверце камеры горения.
- В трубе просверливаем сквозное отверстие диаметром, подходящим к любой резьбе. Подготавливаем круг, который будет подходить по диаметру трубы, и привариваем его в середине трубы к резьбе.
- Замеряем длину топки. Отрезаем прямоугольную трубу по размерам, навариваем на поверхность арматуру не меньше 14мм. Привариваем небольшие ножки и устанавливаем их в середину. Приставляем к верхней части к вырезанному отверстию трубу и обвариваем её по кругу сплошным швом. При необходимости печь можно покрасить термостойкой эмалью.
Буржуйка готова к использованию. Как показало наше тестирование при температуре минус один градус гараж в 24 квадрата за полчаса прогревается до 19 градусов.
Сборка печи буржуйки (пошаговая инструкция)
Классический корпус буржуйки имеет вид прямоугольника. Такая форма наиболее оптимальна, и удобна для самостоятельной сборки.
Пять частей являются основными (дно, крыша, задняя и две боковых стенки). В переднюю стенку будет врезаться дверь топки и, если предусмотрена данная деталь, дверца зольника.
Подробная инструкция по сборке печи:
- В первую очередь, работают с дном и боковыми стенками.
- Для этого поочередно приваривают стенки к основанию. Стенки должны располагаться в строго вертикальной плоскости, что регулярно проверяется с помощью уровня.
- Чтобы не нарушать качество сборки, следует предварительно сделать 2-3 сварочные точки. Лишь после проверки ровности расположения стенок можно окончательно фиксировать детали.
- Следующим этапом приваривается задняя стенка корпуса.
- Пространство внутреннего короба делят на три отсека, каждый из которых будет выполнять определенную функцию.
- Топку печи и отсек для зольника делят с помощью колосниковой решетки. Для изготовления подобной решетки используется обыкновенная решетка, по боковым контурам которой привариваются металлические уголки. Уголки должны располагаться на высоте 15 см. Чтобы решетка прочно фиксировалась внутри короба, на концах дополнительно приваривают полоски из стали, ширина которых достигает 3 см.
- Наиболее оптимальным расстоянием между смежными пластинами решетки должно составлять 4-5 см.
- Готовую решетку просто устанавливают в металлический корпус. Не следует окончательно приваривать стальные полоски к внутренним углам короба, поскольку решетку иногда необходимо снимать для чистки.
- Следующим этапом по верхнему контуру короба приваривают два прута, на которых устанавливается отражатель. Данную деталь можно сделать съемной, что обусловлено особенностями использования печи.
- Перед отражателем делают отверстие, предназначенное для отвода дыма из топки. К краям отверстия приваривают трубу с толстыми стенками.
В последнюю очередь монтируется крышка и передняя стенка. На передней панели корпуса предварительно вырезают отверстия под крышки топки и зольника, а затем приваривают поворотную фурнитуру и сами дверцы. Размер дверец не имеет особого значения, главное, чтобы разъём был удобен для закладки дров и других видов топлива.
Экономичные и энергоэффективные печи для гаража на отработке
Печь на отработанном масле считается наиболее экономной, так как исключает дополнительные затраты на топливо. Если правильно рассчитать материалы и четко следовать инструкции по изготовлению, то она не будет дымить и чрезмерно загрязнять воздух. Предусмотрена работа таких печей на трансмиссионном, машинном или трансформаторном масле. По такому же принципу функционирует дизельная печь для гаража.
В конструктивном плане агрегат представляет собой две емкости, которые соединены между собой перфорированной трубой, имеющей множество отверстий. Если принято решение в пользу установки в гараже печи на отработке, то необходимо, чтобы она соответствовала таким требованиям:
- предельная масса – 30 кг;
- вместительность – до 12 л;
- стандартный размер – 70x50x30 см;
- средний расход топлива – 1 л/час;
- диаметр трубы вытяжки – 100 мм.
Печь для гаража на дровах из двух газовых баллонов очень экономна и проста в обслуживании
Соорудить такую конструкцию достаточно просто. Для создания не понадобятся форсунки и капельницы, поэтому для ее изготовления не нужны особые знания, умения или опыт.
Непосредственно для изготовления печи потребуются такие материалы:
- труба из стали;
- две металлические емкости;
- стальной уголок.
Емкостью может послужить корпус старого негодного компрессора холодильника или же баллон газовый. Печь для гаража на отработке должна изготавливаться из материала толщиной не менее 4 мм, так как предполагается нагрев до 900 °С, поэтому тонкий металл просто-напросто прогорит.
Последовательность изготовления печки в гараж, функционирующей на отработке
Печь для гаража на отработке выгодна при наличии больших его запасов
Процесс создания данного вида печки в гараж своими руками включает такие этапы:
- Установку нижней емкости на ножки. С этой целью из металлического уголка производят детали размером 20 см, на которые и приваривают емкость в горизонтальном положении.
- Вырезание отверстия посредине нижней части корпуса, которая служит топкой и топливным бачком, приваривание к нему вертикальной трубы, соединяющей обе емкости. Желательно, чтобы верхняя часть снималась. Это нужно для проведения чистки горелки.
- Просверливание приблизительно десятка отверстий в трубе на полуметровой высоте. Первое отверстие должно располагаться как минимум в 10 см от основного корпуса печи.
- Изготовление отверстия на верхней части топочной емкости для заливки масла и крышки, которая поможет регулировать уровень нагрева помещения и сам процесс горения.
- Приваривание патрубка на верхней емкости.
- Сооружение трубы вытяжки из оцинкованной стали длиной как минимум 4 метра и ее крепеж на патрубке.
Презентабельный вид гаражной печи придаст покраска. С этой целью используют смесь из силикатного клея, помелённого мела и пудры алюминия.
Недостатки печи для гаража на отработке, особенности эксплуатации
Пользоваться такой печкой, во избежание аварийных ситуаций, необходимо в соответствии с четкой инструкцией. Для этого, пользуясь нижним отверстием печи, в топливный бак необходимо вложить небольшое количество бумаги для растопки. Далее заливается приблизительно 1 литр отработанного масла. Бумагу поджигают и выжидают пару минут, пока масло не закипит. Когда масло начнет медленно гореть, его необходимо по мере необходимости подливать в количестве 3-4 литров.
Несмотря на массу преимуществ данного вида печей для гаража, необходимо упомянуть и об их недостатках, в частности:
- очень длинный дымоход, который должен быть не менее 4 метров в высоту;
- требуется, чтобы устройство дымохода было строго вертикальным, без изгибов и горизонтальных участков;
- емкости для масла и дымоход необходимо регулярно чистить – приблизительно раз в неделю.
Расход масла в печи на отработке регулируется заслонкой подачи воздуха и составляет 0,3 — 1 л. в час
К процессу создания системы отопления в гараже необходимо подойти ответственно, чтобы такие конструкции, как котел на отработке, печь из кирпича, буржуйка своими руками, были выгодны и приносили максимум тепла. Следует учесть, что за экономными вариантами необходимо тщательно ухаживать, а кирпичные конструкции требуют определенного времени на растопку. Для создания металлической печи длительного горения потребуются определённые навыки и знания. В то же время любой из рассмотренных вариантов при условиях правильного сооружения и при соблюдении правил эксплуатации сделает гараж теплым и комфортным.
Классификация печей – основные параметры
Ассортимент отопительных приборов, выставленных на прилавках магазинов, впечатляет. Можно подобрать печь для гаража, работающую на дровах, отработанном масле, газе, бензине и т. п. Проблема в цене – хорошее оборудование стоит дорого, а, которое по карману – даром не нужно. Неудивительно, что в гаражах встречаются печи разнообразных конструкций.
Самодельные отопительные приборы для гаражей классифицируются по следующим признакам:
- Вид топлива. Печь работает на твердом топливе (дерево и уголь) или на отработанном масле. Первый вариант наиболее доступный и популярный, второй востребован в автотранспортных хозяйствах и на СТО – там его использование экономически выгодно.
- Материал, из которого изготовлена печь. Кирпич или металл. Впрочем, металлические изделия более популярны, т. к. кирпичные печи медленнее нагреваются, сложнее в изготовление и занимают больше места (для гаражей – важный параметр).
- Интенсивность горения. Печь работает в двух режимах – интенсивном (режим «буржуйки») или газогенераторном (длительное горение).
Особых пояснений требует только последний пункт. Не так давно в гаражах устанавливали печи из толстостенных металлических бочек, известных как «буржуйки». Их конструкция не отличалась сложностью – в бочке вырезали дверцу, в верхнюю плоскость врезали дымоход, а саму ее водружали на металлические ножки.

Изготовление такой печи не отличается сложностью и высокой ценой, но на этом ее положительные качества заканчиваются. Греет такой отопительный прибор, только пока горит огонь, после чего в считаные минуты остывает, срок эксплуатации тоже не слишком длинный (при постоянном использовании редко превышает 5 лет).
Но сегодня доступность материалов и инструментов, позволяет мастерам разрабатывать, создавать или копировать изделия признанных производителей.
Особенности и принцип работы буржуйки

Буржуйку на дровах простой конструкции можно изготовить из листов металла или дисков
Автономные мобильные печи (буржуйки) имеют давнюю историю и широкий спектр применения. Несмотря на развитие технологий и изобретение новых эффективных и компактных отопительных приборов, они не теряют своей актуальности. Работая практически на всех видах топлива, печки не зависят от наличия электричества, воды, газа, времени года и состояния погоды. Несмотря на низкий КПД (до 0,7) изделия зачастую являются единственным средством обогрева небольших помещений, как в черте населенного пункта, так и в полностью безлюдной местности.
Традиционная буржуйка для гаража имеет такое устройство:
- корпус;
- камера сгорания;
- зольник;
- дымоход.
Принцип работы изделий прост. В топку загружается твердое топливо, проводится его поджог. Горение поддерживается за счет поступающего через зольник и колосники свежего воздуха. Пепел падает в зольник, дым выходит в трубу, стенки корпуса и дымоход источают жар и нагревают помещение. В процессе работы добавляется новые порции горючего, зола извлекается из лотка и складывается в контейнер для отходов.
Где лучше установить печь в гараже?
При выборе места, где лучшее её установить в гараже, следует остановиться на размещении в углу гаража, желательно с противоположной стороны от ворот. Такое размещение позволит более эффективно обогреть площадь всего гаража, и препятствует быстрому охлаждению гаража при открывании ворот.
Для безопасности дымоходную трубу, проходящую вдоль стен следует расположить минимум в 0,5 метра от стены.
Если стена в гараже построена из древесины, то расстояние следует увеличить до метра, и защитить дерево любым огнестойким материалом.
В случае монтажа возле ворот, установленная печь должна находиться не ближе 1 метра от ворот, это нужно для обеспечения безопасности, если обшивка выполнена из дерева.
Изготовление кирпичной печи
Самодельная печь для гаража может иметь в основе кирпич, однако перед началом работ необходимо помнить, что процесс кладки требует от мастера наличия определенных навыков и будет сопровождаться сложностями. Для подобной конструкции предстоит подготовить не столь габаритное пространство. Проведение работ следует осуществлять с использованием огнеупорного кирпича. Тогда как раствор необходимо замешать с использованием песка, шамотного порошка, а также огнеупорной глины.
При укладке топки рекомендуется применять шамотный кирпич, располагая его на уровне 2-4 рядов. В высоту подобная кирпичная печь не будет больше девяти изделий. Для того чтобы обеспечить отвод печных газов, необходимо выложить кирпичный дымоход, во внутреннее пространство которого предстоит установить гильзу, выполненную из нержавеющей стали. Печь для гаража будет выводить дым через дымоход, устроенный сквозь крышу. Обязательно необходимо возвести фундамент, так как печь станет обладать внушительной массой. Сделать его можно на основе монолитной плиты. По периметру конструкции следует застелить стальной лист, который станет защищать пол от попадания искр, ведь они могут стать причиной возникновения пожара.
Примеры конструкций
Как пример к вышеизложенному здесь на рис. – чертежи печи булерьян на тепловую мощность до 6-13 кВт. Общее количество труб в батареях можно уменьшить до 6-7, тогда соответственно сократится и длина печи. Также вполне можно обойтись без смотровой вставки из жаростойкого стекла в дверце, печь разжигается абсолютно надежно.
Чертежи печи булерьян
Но вот точеные детали, гнутье труб по шаблону и фасонные заготовки из 4-мм стали нужны обязательно. Т.е., самому за изготовление буллера следует браться только достаточно опытному мастеру, имеющему возможность пользоваться хоть самым малым станочным парком.
Видео: эксплуатация печи булерьян в гараже
Чертежи печи-буржуйки для гаража
Эту буржуйку можно использовать как дожигатель печи на отработке, см. выше, удлинив ножки до 400-450 мм. В таком случае фланец под патрубок газификатора лучше расположить на боковой стенке под колосниковой решеткой и снабдить его глухой резьбовой крышкой, навинчивающейся при топке дровами/углем. В экране под газификатор нужно прорезать круглое окно, на эффективность печи оно заметно не повлияет. На дверцы топки и поддувала тогда нужно наложить изнутри асбестовые прокладки, чтобы исключить паразитный подток воздуха.
Деталь 1 (корпус и перегородки дожигателя) выполняются из стали 2,5-4 мм. Колосниковая решетка 2 – из стали толщиной 4-8 мм. Экран 3 – из жести или тонкой оцинковки. Варианты исполнения проставок под экран 4 показаны на врезке.
О печах длительного горения
Постоянно обогреваемый гараж с печным отоплением дело, вообще говоря, рискованное. Но в некоторых местностях у владельцев автомобилей просто иного выхода нет. В таком случае выручит печь длительного горения. Кроме того, что самодельные, из подручных материалов, «длинные» печки обеспечивают равномерную теплоотдачу в течение 12-24 час, они работают и на опилках, стружке, щепе, мелковеточном хворосте, соломе, сухих листьях, картонажно-бумажных отходах. Общие недостатки печей длительного горения следующие:
- Топливо требуется только комнатно-сухое, т.е. в гараже нужно будет отвести место под дровник, что еще и увеличивает пожарную опасность.
- В дымоходе оседает обильный конденсат (молекулы воды образуются при пиролизе древесины или летучих компонент угля), поэтому требуется колено дымохода с его сборником и вентилем для слива, что еще отнимает место под печь.
- Погасить разожженную печь невозможно, топливо должно полностью прогореть само.
- Эксплуатация самодельных печей длительного горения не разрешена пожарными правилами, что автоматически аннулирует страховку гаража и автомобиля.
- Если машина взята в аренду или лизинг (аренду с выкупом), то арендодатель получает право в любой момент отобрать ее, не возвращая ни копейки из уже полученных платежей.
Печи длительного горения выполняются в основном по 2 схемам: с закрытой и открытой зонами горения. КПД и тех и других в любительском исполнении достигает 70% Печи с закрытой зоной горения развивают большую удельную тепловую мощность, но несколько сложнее по конструкции.
Пример первых – всем известная бубафоня, см. рис. ниже. Она весьма популярна, т.к. ее можно сделать из бочки, газового баллона, обрезка трубы и т.п. Бубафоня без экрана дает конвективный поток, как раз достаточный для создания теплой шапки. Однако у бубафони как печи для гаража есть серьезный недостаток: при задувании в дымоход возможно обратное горение, при котором из воздуховода бьет пламя, что в гараже никак ни к чему.
Печь длительного горения бубафоня в гараже
Из печей с открытой зоной горения достаточно популярна «Слобожанка», см. рис. ниже. Она предельно проста по конструкции и, если во время топки не снимать крышку, совершенно безопасна. «Слобожанку» малыми сериями выпускают некоторые мелкие частные предприятия. Но сделать ее из баллона или трубы не выйдет: диаметр печи должен быть в пределах 500-700 мм. При равных с бубафоней размерах мощность «Слобожанки» примерно вдвое ниже. Для создания теплой шапки необходим экран.
Печь Слобожанка с экраном
Выбор печи
Гараж — помещение особенное. Нужно соблюсти некоторые требования, чтобы обеспечить должное качество отопления:
- небольшие размеры;
- варианты использования отопления на твердом или жидком топливе;
- возможность быстрого разогрева;
- длительное поддержание нужной температуры гаражного помещения;
- легкая для самодельной сборки конструкция;
- низкая стоимость используемых материалов;
- удобство обслуживания.
Исходя из этих требований, печниками рекомендуются следующие виды печей:
- кирпичная печь для гаража, работающая на твердом топливе;
- металлическая буржуйка, также работающая на твердом топливе, обычно изготавливаемая из газового баллона;
- металлическая, в качестве топлива использующая отработанное масло;
- дровяная печь длительного горения.
После выбора типа агрегата, необходимо набросать чертеж или найти его в сети Интернет, а также, для большей наглядности, просмотреть видео-инструктаж. Теперь предлагаем к рассмотрению все варианты изготовления печей для отопления гаража.
Ответы на часто задаваемые вопросы о буржуйке
Какую буржуйку лучше купить?
Все зависит от предполагаемого режима использования. Если нужно иногда протопить помещение на пару-тройку часов, то достаточно недорогой буржуйки из чугуна или толстой стали.
Если при этом хочется попить чаю, то берите модель с верхней плиткой.
Если требуется долгое время или постоянно отапливать бокс, то лучше брать модель с камерой дожига – такой вариант более экономичен, подкладывать дрова придется реже.
Самой экономичной будет печь, работающая на жидком топливе. Такая конструкция может поддерживать тепло в гараже сутками подряд.
Что лучше: печь или буржуйка для гаража?
Буржуйка в целом удобнее – она компактнее, проще в изготовлении, быстро прогревает помещение.
Печь хороша, если нужно постоянно поддерживать тепло, протапливая ее 2-3 раза в день. Но она не может за 20 минут прогреть бокс, когда нужно среди недели срочно выполнить какую-нибудь работу, потратив на нее как можно меньше времени.
Как правильно сделать дымоход для буржуйки?
Дымоход должен сочетать вертикальные и наклонные участки. Т.е. после вертикального участка от самой печки, должен быть участок с наклоном примерно в 30°, затем опять вертикальный, заканчивающийся отверстием, через которое дым выходит наружу.
Такая конструкция позволяет дожигать горючие газы, а также отдавать в помещение тепло, содержащееся в дыме.
На каком расстоянии от стены можно ставить буржуйку?
Должно быть примерно 10 см. Промежуток нужен для нормальной циркуляции воздуха, нагревающегося от стенок буржуйки.
Порядок эксплуатации печи
- Демонтируется часть подающего трубопровода, снимается крышка и удаляется пресс.
- Закладываются дрова. Их лучше размещать вертикально, так как такая плотная постановка поленьев уменьшит объем, который занимает воздух, и также будет способствовать их более длительному горению.
- Верхний слой – из легковоспламеняющихся фракций (опилки, мелкая щепа). Не забываем, что розжиг – сверху! Верхний срез закладки должен быть немного ниже уровня вытяжки, иначе горения не будет. Для облечения воспламенения дров, как и в обычной топке, на них можно положить тряпку, смоченную в соляре (или бензине), бумагу.
- Далее – в обратном порядке: груз – крышка с первым коленом (если оно несъемное).
Как уже смог убедиться уважаемый читатель, ни сборка своими руками, ни эксплуатация печи дровяной длительного горения никакой сложности не представляет.
Полезные рекомендации
- Сократить время прогрева помещения и повысить КПД печи можно, увеличив поверхность теплообмена. Для этого к корпусу печки, по бокам, достаточно приварить металлические пластины.
- Пробку в крышке печи желательно оставить (не заваривать). Ее можно использовать в качестве смотрового окна, чтобы контролировать процесс горения.
- Своими руками колосник делается просто. Из листа металла вырезается фрагмент железа, соответствующий диаметру печи. Причем совсем не обязательно, чтобы это был идеальный круг. В колоснике высверливаются отверстия, а их количество подбирается опытным путем. Для стандартной 200 л бочки примерный диаметр отверстий – 6 – 8 мм. Этого хватит, чтобы зола свободно ссыпалась вниз.
Удачи в конструировании печи и теплого гаража!
Буржуйки дровяные из подручных материалов
Буржуйку в гараж лучше подбирать, учитывая возможности ее использования. Оптимально делать ее с учетом последующей модернизации, а именно использования разного топлива. Но на начальном этапе лучше и дешевле чем дрова топлива не найти. В связи с чем и строить буржуйку стоит сначала только под дрова.
Из чего можно собрать корпус печи
Чтобы получить хороший отопительный прибор на дровах необязательно специально покупать дорогостоящие материалы
Достаточно просто обратить внимание на те предметы, из которых можно сделать корпус. Если сделать анализ проектов мастеров, то буржуйка в гараж отлично получается из:
- Толстостенной водопроводной трубы диаметром 500 и более миллиметров;
- Старого газового баллона;
- Старых автомобильных стальных дисков;
- Толстостенных бочек и бидонов;
Отдельно от этого списка стоит отметить листовой металл толщиной от 2 мм. Это один из самых благодарных материалов для того чтобы решить задачу как сделать буржуйку в гараж.
Но, это классические варианты самодельных металлических печей, а ведь можно еще и пофантазировать и соединить несколько проектов в один. Например, используя колесный диск в качестве основания для вертикальной печи из газового баллона или толстостенной печи.
Популярные проекты печей
Но как бы там ни было, стоит отдельно остановиться на наиболее популярных проектах гаражных самоделок под топку дровами.
Самая популярная модель – это печь из газового баллона. Здесь обычно применяется две схемы расположения – вертикальная и горизонтальная, в зависимости от типа расположения корпуса баллона.
Для вертикальной печи характерно то, что она не занимает много места. Это ее плюс, но вот что касается минусов, то здесь сразу сказывается небольшая по размерам топка. Для нее нужно иметь небольшие дрова длиной всего 25-30 см.
Для горизонтально расположенного баллона длина топки увеличивается, здесь можно топить и метровыми дровами.
Можно также сделать буржуйку и со сдвоенным корпусом. Некий прообраз пиролизной печи, где происходит дожигание легких газов, образовавшихся при разложении древесины. Такая модель вполне доступна для сборки даже начинающим мастерам.
Готовый узел топочной дверки можно заимствовать из молочного бидона или бидона из-под краски. Правда, если бидон изготовлен из стали, а не из алюминия. Только стальной бидон пригоден для переделки в гаражную дровяную печь.
Что касается труб, то это, пожалуй, лучший вариант корпуса круглой формы. Толщина стенок в трубах достигает 10 мм, что является гарантией долговременной и безаварийно эксплуатации печи.
Как вариант можно использовать колесные диски.
Ну а если руководствоваться принципом «дешево и сердито» то здесь в приоритете металлические бочки. Это действительно очень дешево, и сердито – на один сезон в принципе должно хватить.
Как можно топить гараж?
Чтобы гараж стал теплым, используют системы отопления сходные для обогрева жилых помещений. В зависимости от размера гаражного сооружения используют 3 варианта обогрева:
- природный газ в качестве средства нагрева;
- печь, работающую на древесине или угле;
- электрические обогреватели.
Первые два варианта подходят тем, кто пытается сэкономить деньги.
иродный газ, хотя и не очень дешевый, быстро нагревает большие помещения. Проблема связана с наличием водопровода и источника голубого топлива. Когда гараж находится в непосредственной близости от газовой магистрали, то в этом случае достаточно легко подключить трубы, в которых вода будет нагреваться с помощью газа. При подведении воды из центральных коммуникаций также не должно возникать проблем. В случае удаленности гаража от газовых труб и центрального водоснабжения — этот вариант нереален для осуществления.
Следующий путь, связанный с установкой печи, наиболее приемлемый, так как помещение нагревается только тогда, когда хозяин приходит в гараж и расход денег на отопление не будет ежедневным. Недостатком такой системы отопления является само топливо. Ему необходимо место для хранения. Печь из кирпича в гараж не подойдет для двухэтажного гаражного строения по причине большого расхода дров или угля.
Отапливать помещение электроприборами — затратное дело.
Третий вариант связан с использованием электроприборов. Недостатком этого вида обогрева является то, что электричество дорогое. Для отопления возникнут значительные расходы на постоянные сеансы обогрева. Прибор, который нагревает холодное помещение, должен быть мощным, что также влияет на его стоимость. Таким образом, лучший способ нагрева связан с установкой в гараже печи.
Изготовление дровяной печи
Если печь для гаража на отработке вас не устраивает по той причине, что гараж вы используете не для машины, а, например, для хранения овощей, то можно изготовить печь, работающую за счет дров. Она тоже экономична, так как подкладывать дрова в нее не возникает необходимости порой до 20 часов. Для ее изготовления рекомендуется использовать стальную бочку, объем которой равен 200 л. Предварительно бочку необходимо подготовить, для этого ее верхняя часть убирается, чтобы появилась возможность сделать отверстие для дымоотводящей трубы. Помимо этого, нужно проделать отверстие для 100-мм трубы, сквозь которую станет поступать кислород.
Печи для гаража на дровах работают эффективно, если дымоход имеет правильные параметры. Таким образом, его диаметр должен быть равен 150 мм или больше.
Конструкцию предстоит снабдить кругом, который делается из листового металла. К нему нужно приварить 2 отрезка швеллера. Круг должен обладать такими габаритами, чтобы он имел возможность свободно передвигаться во внутреннем пространстве. После необходимо сделать отверстие, к которому крепится 100-мм труба. В качестве альтернативного решения можно применить трубу, которая заменит бочку.
Подготовительные работы
После выбора готового товара или составления проекта самодельного следует определиться с местом монтажа и провести его подготовку. Установку целесообразно провести у дальней стены в углу или посередине. Так генерируемое тепло не будет уходить через дверь, а отражаясь от стен, заполнит помещение.
Следует учесть такие моменты:
- Если пол земляной, необходимо делать под очаг отдельный фундамент. На деревянное или полимерное основание потребуется уложить стальной лист.
- В противоположной от печи части здания в нижней части нужно сделать отдушину. Она нужна для обеспечения хорошей тяги и притока кислорода в топку.
- Отступать от стены надо на 50-60 см — это уменьшит тепловые потери. Если они из горючего материала, потребуется обшивка железом или асбестом.
- Заранее продумать место прохода трубы через несущие конструкции. Лучшим вариантом считается выход через стену под двумя углами 45 градусов.
- Предусмотреть зонтик на дымоходе. Эта деталь спасет от попадания в него снега, мусора, птиц и задувания сильных порывов ветра.
Помимо этого, можно разработать такие опции, как теплообменник, водяной контур и внешние радиаторы.
Расчёт основных параметров
Параметры обогревателя рассчитываются исходя из таких критериев, как размер гаража, наличие свободного места и климатические условия региона. Одним из пунктов является определение высоты и диаметра дымовой трубы. Оптимальным считается сечение 100-150 мм. Чтобы максимально снизить объем нагара лучше переплатить, но установить фарфоровые или коаксиальные трубы.
Кирпичная печка в гараже: преимущества и минусы
Пришло время подробнее остановиться на конкретных достоинствах и недостатках кирпичных печек в гаражах. Начнем с плюсов.
- Кирпичная конструкция отличается в положительную сторону от чугунных и стальных аналогов: она гораздо дольше остывает после растопки, длительное время держит тепло. Здесь идет удвоение теплоемкости, поскольку кирпич сам по себе хорошо удерживает тепло, кроме того, конструкция в целом много весит.
- Кирпичная печь позволяет поддерживать нужную температуру благодаря наличию поддувала, заслонок. Если научиться правильно ими пользоваться, можно обеспечить в гаражном помещении комфортный микроклимат.
- Такое оборудование весьма экономично. Особенно бюджетный вариант получается, когда хозяин гаража самостоятельно выполняет всю работу. Тогда можно сложить печь из кирпича, вложив в это буквально 10-15 тысяч рублей. Понадобится приобрести сам кирпич, цемент для приготовления раствора и чугунное литье.
- Мощность обогрева будет зависеть от размеров топки. Можно сделать небольшую печь, если гараж имеет скромную площадь, хорошо утеплен.
- В процессе эксплуатации затраты тоже минимальны. Уголь, дрова наиболее экономичны, после магистрального газа.
К сожалению, некоторые недостатки тоже имеются.
Конечно, кирпичную печь понадобится растапливать каждый день, если вы захотите длительное время поддерживать в помещении определенную температуру. Кроме того, быстро прогреть с ней воздух тоже не получится: остывает кирпич долго, но и нагревается так же.
Экономичность и минимальный бюджет возведения – тоже спорный момент. Дело в том, что эффективнее и надежнее будет печка из огнеупорного кирпича. А он стоит дороже примерно в 5 раз. Кроме того, нередко автолюбители желают сделать конструкцию более эстетичной, а облицовочный кирпич тоже дорогой.
КПД моментально резко падает, если ограничить поступление воздуха через поддувало, поскольку продукты неполного сгорания благодаря тяге уносятся в дымоход. Здесь сложность состоит в работе всех традиционных недорогих печек. Газогенераторный котел способен решить проблему, но это слишком дорогой вариант, совершенно не оправданный с экономической точки зрения в условиях гаража.
Альтернативные варианты
Специалисты предлагают альтернативные решения. Например, можно приобрести газовый конвектор. Такой агрегат работает автономно, благодаря газовому баллону. Такое оборудование стоит примерно 8 тысяч рублей. Некоторые выбирают инверторные кондиционеры. Здесь бюджет составит 25 тысяч.
Еще один интересный вариант – печка длительного горения. Она тоже пользуется достаточно большим спросом среди тех автолюбителей, которые ищут наиболее экономичные методы для обогрева гаража. Можно посмотреть на схеме, каким образом конструируется такой агрегат. Большое преимущество устройства – длительное горение и обогрев помещения. Можно заложить топливо, а потом оно будет постепенно расходоваться на протяжении суток. Секрет в том, что процесс горения постепенно заменяется тлением с выделением тепла. Здесь предельно высок КПД.
Печь на отработке тоже является неплохим отопительным устройством. Экономия основана на особенности топлива – это уже отработанное машинное масло. Но здесь тоже не все так просто, поскольку масло придется очищать на специальной установке, иначе агрегат быстро сломается.
Традиционная буржуйка тоже до сих пор пользуется доверием. Ее относительно легко сделать из металлических труб, она быстро прогреет гараж. Правда, остывает буржуйка тоже моментально.




































